дом 2.2

Генеральный план

Статус объекта: Построен

дом № 33 по ул.Нововиленская (№2.2  ЖК "Левада") 

ЖК «Левада» - жилой комплекс класса комфорт, строится  в Центральном районе столицы — на берегу реки Свислочь вдоль улицы Нововиленская. 

«Левада» разместится вдали от шумных проспектов, в окружении природно-парковых зон: поблизости  находятся парк Победы,  водохранилище Дрозды и Комсомольское озеро. В шаговой доступности от нового комплекса протекает река Свислочь. На противоположном берегу реки вас встретит парк Dreamland, в ближайшем будущем появится всесезонный лыжный манеж.

 

В доме представлены разнообразные планировочные решения от компактных студий до просторных четырехкомнатных квартир, в том числе квартиры с панорамным остеклением, вторым светом и собственными террасами. 

 

Заключаем договоры купли-продажи.

 

Предлагаем при покупке квартиры беспроцентную рассрочку на 2 года ( 30% в течение  3 банковских дней, оставшаяся сумма оплачивается ежемесячно равными частями). 

 

 

Комфорт

К услугам жителей – служба эксплуатации, которая отвечает за то, чтобы все вопросы, связанные с проживанием в домах решались быстро и профессионально. Мы создали мобильное приложение, которое позволит упростить взаимосвязь между жильцами и сервисной службой, повысит скорость оперативного реагирования на заявки, позволит жильцам взаимодействовать с оборудованием стоянок и домофонными системами.

 

При  покупке квартиры в ЖК "Левада" вы получаете в подарок карту привилегий Premium Card, которая предоставляет её владельцу право на получение скидок в сети компаний-участников программы. Актуальный и обновляемый каталог компаний-участников доступен на сайте программы привилегий: www.premiumcard.by  

 

 

*Лева́да — участок речной долины, усаженный деревьями;       лиственный лес в поймах рек;      приусадебный участок земли

Мы создали для вас пространство комфорта, безопасности и уюта.

 

Информация об объекте

  • Начало строительства: 2020
  • Окончание строительства: дом сдан
  • Конструкция: монолитно-каркасная
Таблица
Кол-во комнат м² Тип Стоимость за 1м²* Стоимость за 1м²* (в рассрочку) Примечание
1 1 1 3 BYN (1 USD)

* - При валюте договора USD: Оплата за недвижимость производится в белорусских рублях по курсу Национального банка Республики Беларусь исходя из стоимости на день оплаты/зачисления денежных средств на счёт Застройщика.

* - При валюте договора BYN: Оплата за недвижимость устанавливается и производится в белорусских рублях.

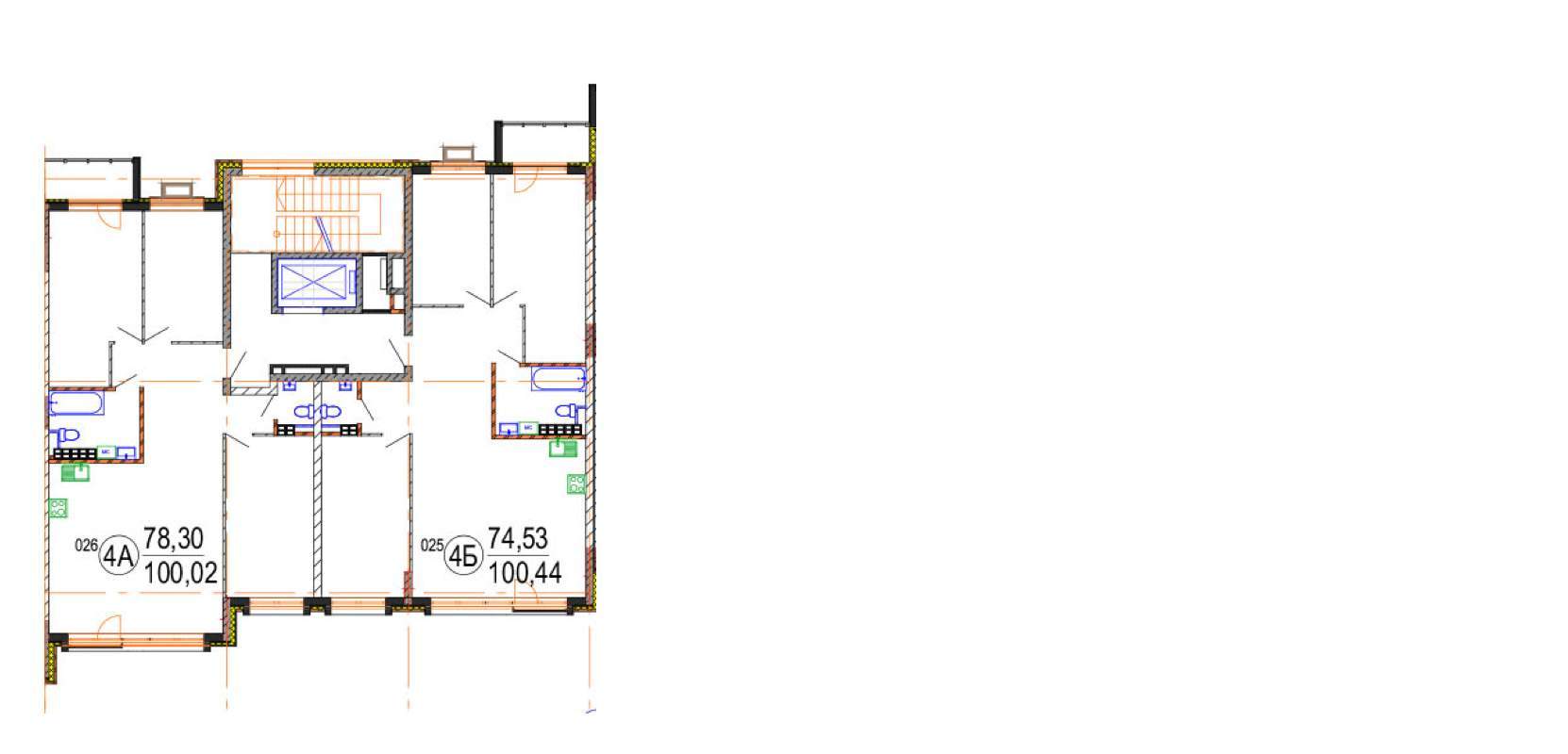
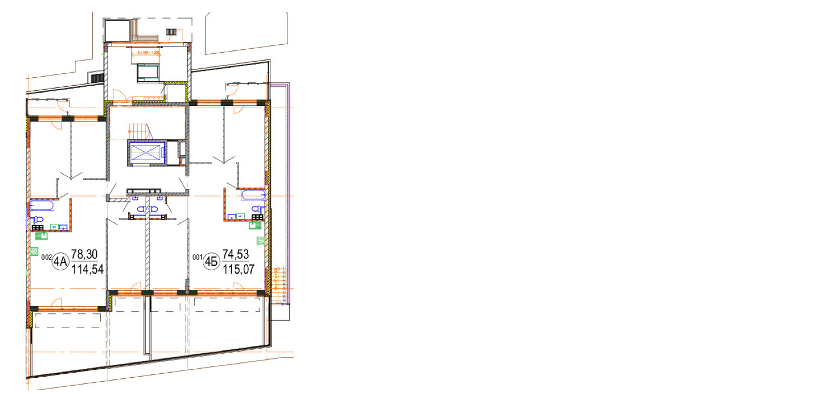
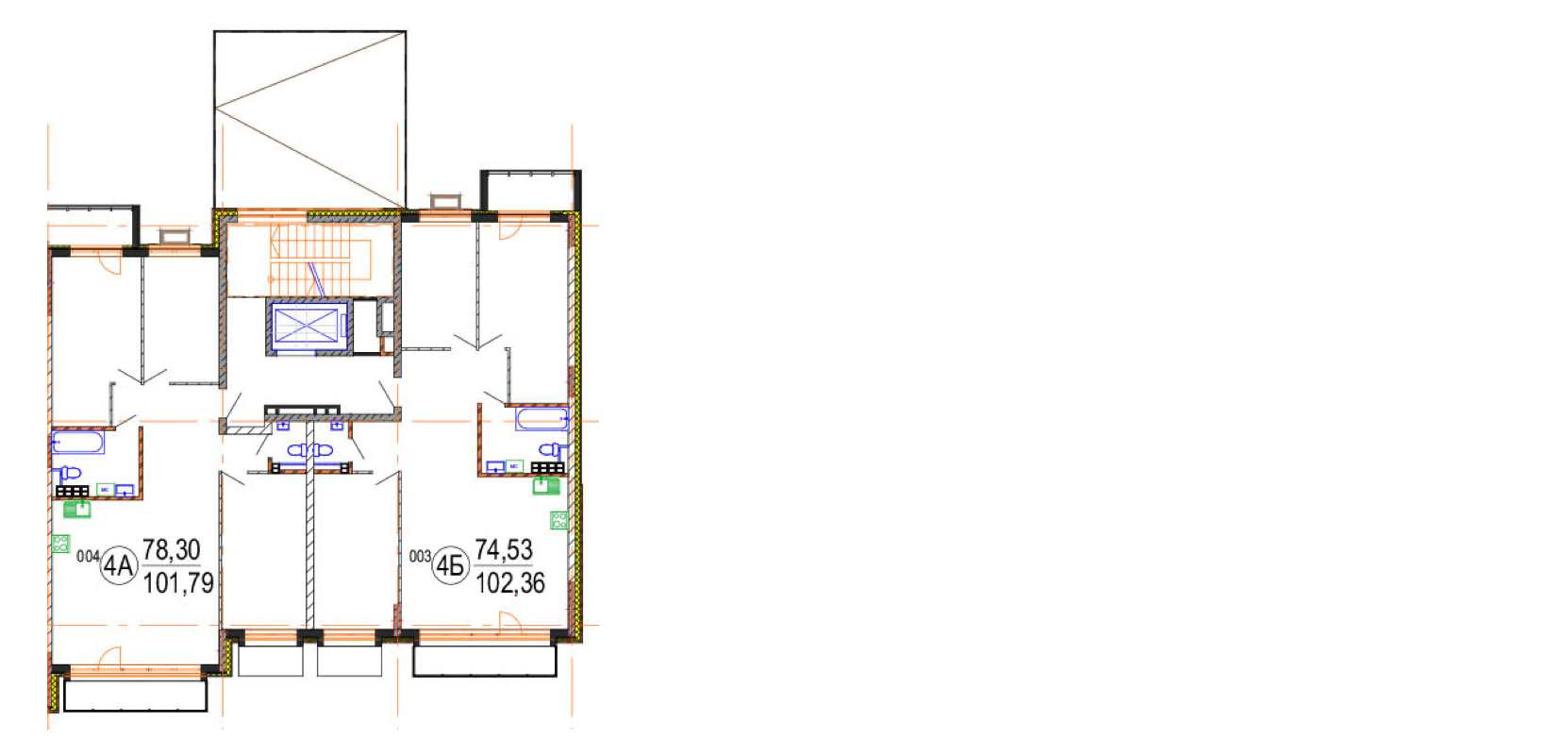
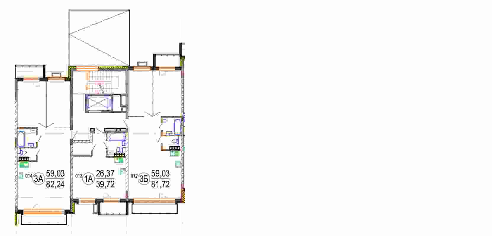
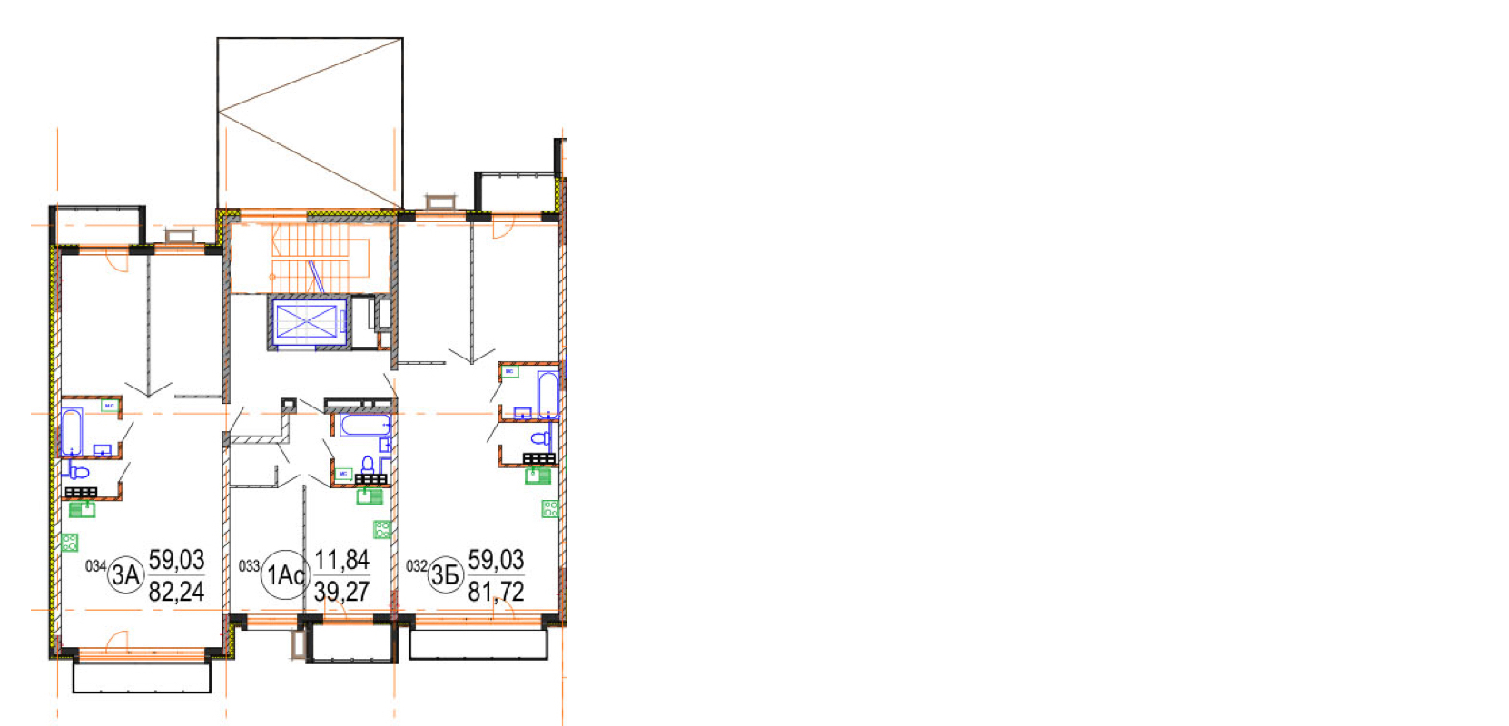
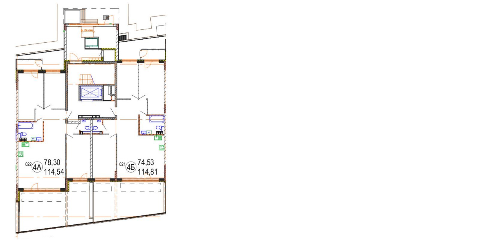
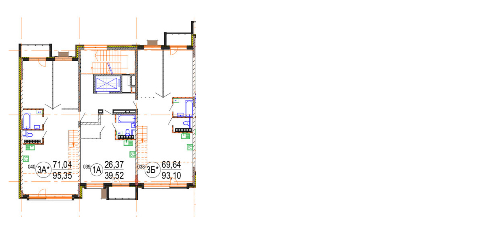
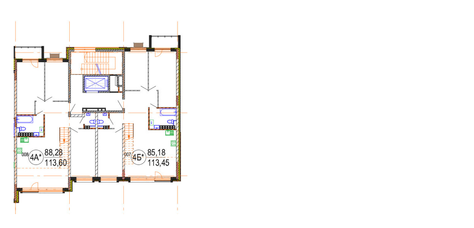
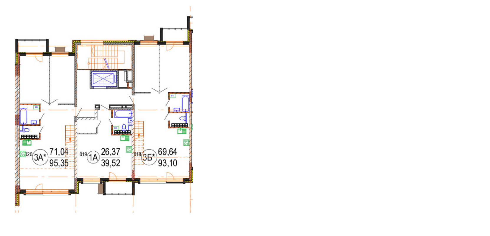
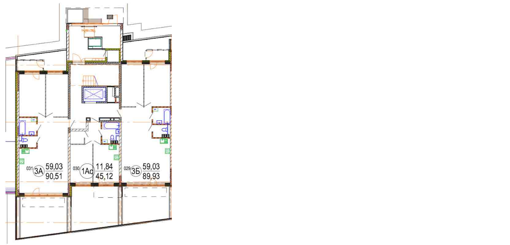
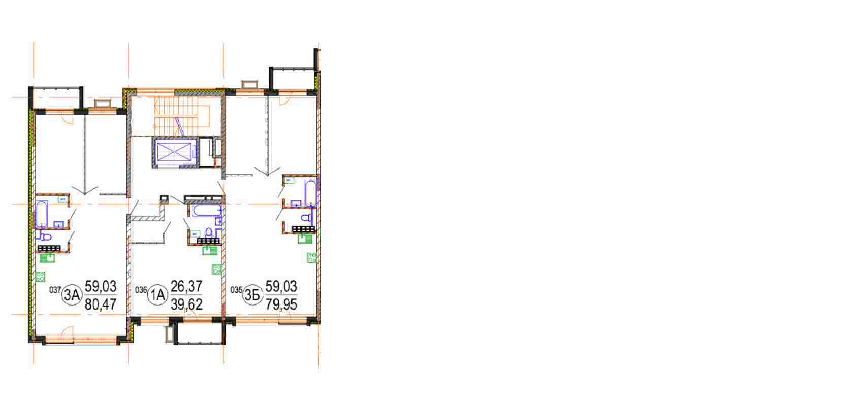
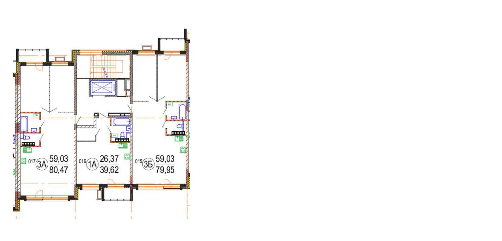
Планы этажей

1 этаж 1 секция

Показать планировки

2 этаж 1 секция

Показать планировки

3 этаж 1 секция

Показать планировки

4 этаж 1 секция

Показать планировки

1 этаж 2 секция

Показать планировки

2 этаж 2 секция

Показать планировки

3 этаж 2 секция

Показать планировки

4 этаж 2 секция

Показать планировки

1 этаж 3 секция

Показать планировки

2 этаж 3 секция

Показать планировки

3 этаж 3 секция

Показать планировки

4 этаж 3 секция

Показать планировки

1 этаж 4 секция

Показать планировки

2 этаж 4 секция

Показать планировки

3 этаж 4 секция

Показать планировки

4 этаж 4 секция

Показать планировки