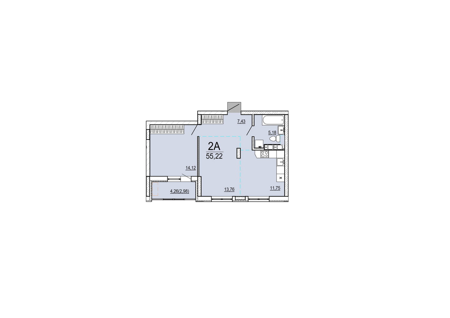
ЖК "Чайка" Октябрьской Революции ул., д. №3.2 по ГП, г.Брест, застройщик ООО "АйронИнвестПроект" ЖК "Чайка" (г. Брест) , 2-комнатная квартира

2-комнатная 57.17 м²

№ 11, секция 1, этаж 4
Площадь
57.17 / 38.34 / 11 м²
Этаж
4 / 17
Секция
1 / 6
Цена:
3600 BYN/м²
205 812.00 BYN
Валюта договора: BYN
Оплата за недвижимость устанавливается и производится в белорусских рублях.
Поделиться

Другие 2-комнатные квартиры секции

При валюте договора USD: Оплата за недвижимость производится в белорусских рублях по курсу Национального банка Республики Беларусь исходя из стоимости на день оплаты/зачисления денежных средств на счёт Застройщика.
При валюте договора BYN: Оплата за недвижимость устанавливается и производится в белорусских рублях.